DE WARANDE V 0405
Franslaan 57 0405, Nieuwpoort

€ 337.000

  • 2 Slaapkamer
  • 1 badkamers
  • Vierde verdieping

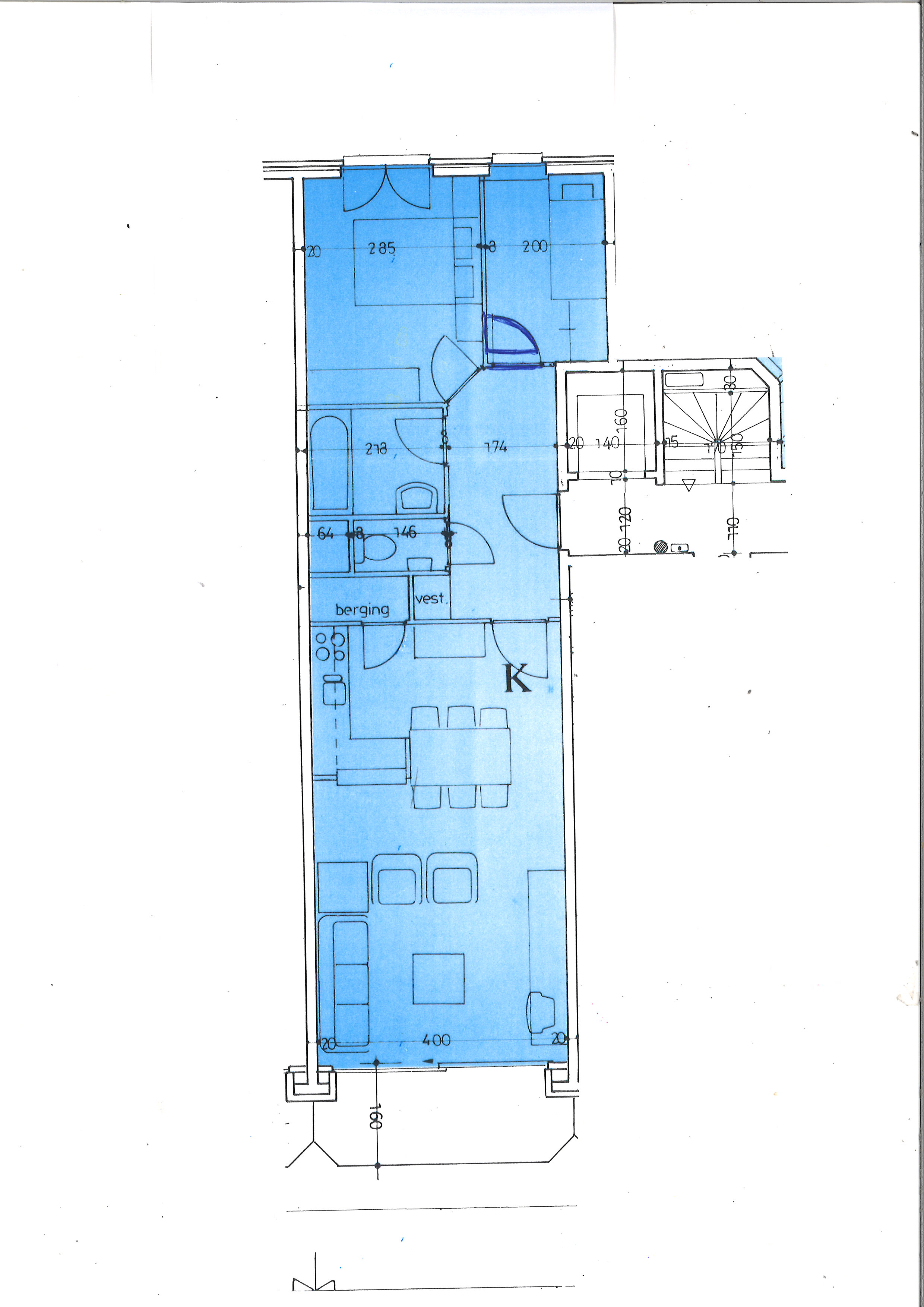
Beschrijving

Twee slaapkamer appartement in de zijstraat van de winkelstraat
Recent gerenoveerd

Inkom met gastentoilet
Ruime leefruimte
Compleet uitgeruste keuken
Terras
Badkamer voorzien van inloopdouche en wastafel
Twee slaapkamers

Ondergrondse kelder inbegrepen
Gemeubeld
Mogelijkheid tot aankoop garage in de nabijheid

Kenmerken

Bewoonbare oppervlakte
65 m²
EPC label
B (170 kWh/m²)
Kadastraal inkomen
€ 800
Lasten per maand
In aanvraag
Vrij op
Bij akte
Lift
ja
Terras
ja
Kelder
ja
Gemeubeld
ja

Informatieplicht

Stedenbouwkundig vergunning
Ja
Dagvaarding uitgebracht
Nog niet aangevraagd
Rechterlijke beslissing
Nog niet aangevraagd
Voorkooprecht
Nee
Verkavelingsvergunning
Nee
Stedenbouwkundige bestemming
Woongebied
Afgebakende oeverzone
Nee
Afgebakende overstromingsgebieden
Nee
G(ebouw) score
Klasse A
P(erceel) score
Klasse A

Documenten

Locatie

Kaart  Nieuwpoort  Franslaan 57
Franslaan 57, Nieuwpoort

Contacteer ons

  • Ik wens*

Kevin Deman
058/22.32.56
kevin@eecke.be
Vastgoedmakelaar BIV 506753

Hylke Castelain
058/22.32.55
hylke@eecke.be
Vastgoedmakelaar BIV 504713